Trong lĩnh vực xây dựng, hồ sơ thiết kế nội thất và một phần quan trọng. Nó được xem là tài liệu thể hiện ý tưởng, giải pháp thiết kế, vật liệu và kỹ thuật thi công. Nhằm mang lại không gian sống đẹp mắt, tiện nghi. Để hiểu rõ hơn về hồ sơ thiết kế nội thất cùng những vai trò của nó thì hãy cùng Nẹp Giá Rẻ khám phá nội dung trong bài viết sau đây nhé!
Hồ sơ thiết kế nội thất gồm những gì?
Một bộ hồ sơ thiết kế nội thất đầy đủ và chuyên nghiệp thường phải có các các phần sau đây:
Hồ sơ phối cảnh 3D
Hồ sơ phối cảnh 3D là bản thể hiện hình ảnh không gian nội thất dưới dạng phối cảnh ba chiều. Phần này giúp chủ đầu tư hình dung được tổng thể không gian sau khi hoàn thiện. Phối cảnh 3D thường bao gồm các góc nhìn khác trong trong từng phòng như phòng khách, phòng ngủ, bếp, nhà vệ sinh, văn phòng,…

Bản vẽ mặt bằng bố trí nội thất
Đây là bản vẽ kỹ thuật thể hiện cách bố trí các đồ nội thất như bàn, tủ, ghế trên mặt bằng công trình. Bản vẽ này đảm bảo tính khoa học và phân chia không gian, luồng giao thông và công năng khi sử dụng. Giúp chủ đầu tư hình dung các đồ vật được sắp xếp khoa học, hợp lý và đúng với nhu cầu và sở thích.
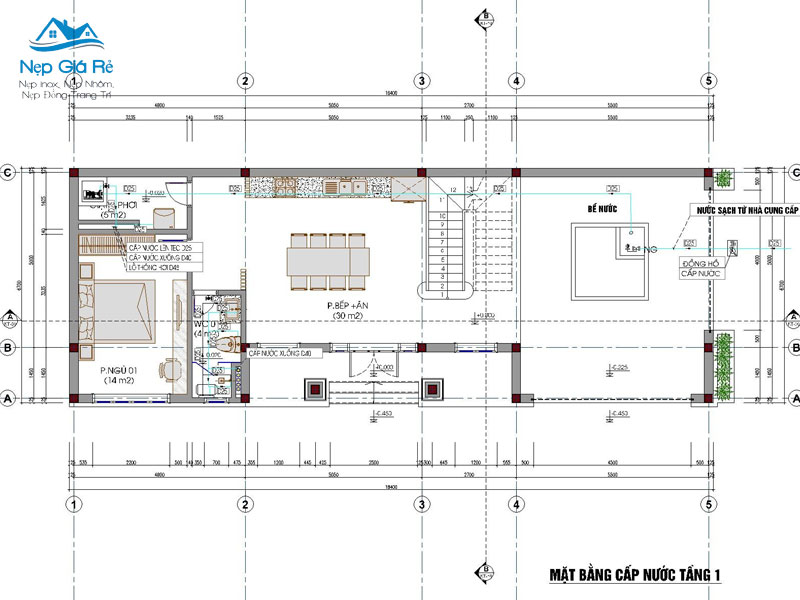
Hồ sơ điện, nước và ánh sáng
Hồ sơ điện, nước và ánh sáng thể hiện các vị trí ổ cắm, công tắc, thiết bị điện chiếu sáng, hệ thống cấp thoát nước,… Hồ sơ này đảm bảo việc lắp đặt an toàn và tiện dụng. Đồng thời không làm ảnh hưởng đến yếu tố thẩm mỹ của nội thất trong không gian.

Lợi ích của việc sở hữu hồ sơ thiết kế nội thất
Bên cạnh những lợi ích cơ bản như đảm bảo thẩm mỹ, tiết kiệm chi phí thì việc sở hữu hồ sơ thiết kế nội thất còn mang lại nhiều lợi ích khác như:
- Tiết kiệm chi phí thi công: Nhờ có bản thiết kế rõ ràng, đội ngũ thi công sẽ tránh được sai sót, tránh lãng phí vật tư.
- Tiết kiệm thời gian: Giảm thiểu việc chỉnh sửa, thay đổi trong quá trình thi công
- Đảm bảo thẩm mỹ và công năng: Thiết kế nội thất chuyên nghiệp mang đến không gian đẹp, tiện nghi phù hợp với phong cách sống của chủ nhà.
- Tăng giá trị bất động sản: Một công trình được đầu tư thiết kế bài bản sẽ có giá trị sử dụng cao hơn.

Hồ sơ thiết kế giúp làm rõ phong cách sống, nhu cầu và sở thích của từng cá nhân trong gia đình. Từ phong cách cổ điển, tân cổ điển,… Tất cả sẽ được thực hiện có khoa học trong bản thiết kế.
Ứng dụng của nẹp inox U trong thiết kế nội thất
Trong quá trình hoàn thiện nội thất, các chi tiết nhỏ như nẹp inox chữ U lại đóng vai trò quan trọng trong việc nâng cao tính thẩm mỹ và độ bền công trình. Nẹp U inox được làm từ thép không gỉ có tuổi thọ cao, chịu được trong môi trường ẩm ướt và khắc nghiệt. Bề mặt nẹp sáng bóng và xước mờ giúp tôn lên vẻ đẹp hiện đại cho không gian.

Ứng dụng của nẹp inox chữ U:
- Che khe hở, mối nối: Nẹp chữ U giúp che đi những khe hở giữa vật liệu như gỗ, đá, kính gạch,… Giúp đảm bảo tính thẩm mỹ và bảo vệ vật liệu.
- Tạo điểm nhấn trang trí: Nẹp U thường được gắn ở các mảng tường, vách ngăn hoặc trên bề mặt đồ dùng nội thất như tủ, kệ,…. nhằm tăng thêm độ tinh tế và sang trọng.
- Bảo vệ mép vật liệu: Đối với các vị trí dễ bị va chạm, nẹp U inox giúp bảo vệ cạnh mép khỏi sứt mẻ, bong tróc.
Việc lựa chọn loại nẹp phù hợp và bố trí đúng cách sẽ thể hiện rõ trong hồ sơ thiết kế nội thất. Điều này giúp đảm bảo sự nhất quán và hoàn thiện trong tổng thể công trình.
Vừa rồi là những chia sẻ của Nẹp Giá Rẻ về vai trò hồ sơ thiết kế nội thất cũng như ứng dụng của nẹp inox chữ U trong thiết kế nội thất. Hy vọng bài viết trên sẽ cung cấp cho bạn những thông tin hữu ích. Đừng quên theo dõi chúng tôi và đón xem những bài viết mới nhất nhé!
Xem thêm
Cách thiết kế nội thất biệt thự mini đẹp, tối ưu diện tích
Cách decor nội thất nhà đẹp, tiện nghi ai cũng nên thử






